์‹คํ—˜์‹ค ๋ ˆ์ด์•„์›ƒ ๋ฐ ์„ค๊ณ„
์‹คํ—˜์‹ค ๋ ˆ์ด์•„์›ƒ ๋ฐ ์„ค๊ณ„๋Š” ์—ฐ๊ตฌ ํšจ์œจ์„ฑ, ์•ˆ์ „์„ฑ, ์œ ์—ฐ์„ฑ์„ ์ตœ์šฐ์„ ์œผ๋กœ ๊ณ ๋ คํ•˜๋Š” ์ค‘์š”ํ•œ ๊ณผ์ •.
The layout and design of a laboratory are critical processes that prioritize research efficiency, safety, and flexibility above all else.
์‹คํ—˜์‹ค ๋ ˆ์ด์•„์›ƒ ๋ฐ ์„ค๊ณ„
์‹คํ—˜์‹ค ๋ ˆ์ด์•„์›ƒ ๋ฐ ์„ค๊ณ„๋Š” ์—ฐ๊ตฌ ํšจ์œจ์„ฑ, ์•ˆ์ „์„ฑ, ์œ ์—ฐ์„ฑ์„ ์ตœ์šฐ์„ ์œผ๋กœ ๊ณ ๋ คํ•˜๋Š” ์ค‘์š”ํ•œ ๊ณผ์ •.
The layout and design of a laboratory are critical processes that prioritize research efficiency, safety, and flexibility above all else.

๐Ÿ“ ์‹คํ—˜์‹ค ๋ ˆ์ด์•„์›ƒ ๋ฐ ์„ค๊ณ„ (Laboratory layout and design)

์‹คํ—˜์‹ค ๋ ˆ์ด์•„์›ƒ ๋ฐ ์„ค๊ณ„๋Š” ์—ฐ๊ตฌ ํšจ์œจ์„ฑ, ์•ˆ์ „์„ฑ, ์œ ์—ฐ์„ฑ์„ ์ตœ์šฐ์„ ์œผ๋กœ ๊ณ ๋ คํ•˜๋Š” ์ค‘์š”ํ•œ ๊ณผ์ •. 

์‹คํ—˜์‹ค์˜ ๋ชฉ์ ๊ณผ ์ž‘์—… ํ๋ฆ„์— ๋งž๋Š” ์ตœ์ ์˜ ์„ค๊ณ„๋Š” ์—ฐ๊ตฌ ์„ฑ๊ณผ๋ฅผ ๊ทน๋Œ€ํ™”ํ•˜๊ณ , ์•ˆ์ „ํ•œ ํ™˜๊ฒฝ์„ ์œ ์ง€ํ•˜๋Š” ๋ฐ ๊ธฐ์—ฌ ํ•จ. 

์‹คํ—˜์‹ค ์„ค๊ณ„๋Š” ๊ณต๊ฐ„ ํ™œ์šฉ, ์žฅ๋น„ ๋ฐฐ์น˜, ๋™์„  ์ตœ์ ํ™”, ์•ˆ์ „ ์„ค๋น„ ๋“ฑ์„ ์ข…ํ•ฉ์ ์œผ๋กœ ๊ณ ๋ คํ•ด์•ผ ํ•˜๋ฉฐ, ํŠนํžˆ ๋ฒ•์  ๊ทœ์ œ์™€ ์‚ฐ์—… ํ‘œ์ค€์„ ์ค€์ˆ˜ํ•ด์•ผ ํ•จ.


์‹คํ—˜์‹ค์˜ ๊ณต๊ฐ„ ๋ฐฐ์น˜, ๋™์„ , ์•ˆ์ „, ๊ธฐ๋Šฅ์„ฑ์„ ์ตœ์ ํ™”ํ•˜์—ฌ ์—ฐ๊ตฌ ์ž‘์—…์ด ํšจ์œจ์ ์ด๊ณ  ์•ˆ์ „ํ•˜๊ฒŒ ์ด๋ฃจ์–ด์ง€๋„๋ก ์„ค๊ณ„ํ•˜๋Š” ๊ณผ์ •. 

์ด๋Š” ์‹คํ—˜์‹ค์˜ ๋ชฉ์ , ์‹คํ—˜ ๊ณผ์ •์—์„œ ๋‹ค๋ฃจ๋Š” ๋ฌผ์งˆ์˜ ์ข…๋ฅ˜, ์‚ฌ์šฉ๋˜๋Š” ์žฅ๋น„, ์ž‘์—…์ž์˜ ๋™์„  ๋“ฑ์„ ๊ณ ๋ คํ•˜์—ฌ ์ง„ํ–‰ ๋จ. 

์‹คํ—˜์‹ค์˜ ๋ชฉ์ ์— ๋”ฐ๋ผ ๋ฌผ๋ฆฌ์  ๊ตฌ์กฐ, ๊ธฐ์ˆ ์  ์š”๊ตฌ์‚ฌํ•ญ, ํ™˜๊ฒฝ์  ์š”๊ฑด์ด ๋‹ค๋ฅด๊ธฐ ๋•Œ๋ฌธ์—, ๊ฐ๊ฐ์˜ ์š”๊ตฌ์‚ฌํ•ญ์— ๋งž์ถ˜ ๋งž์ถคํ˜• ์„ค๊ณ„๊ฐ€ ํ•„์š”ํ•ฉ.

์‹คํ—˜์‹ค ๋ ˆ์ด์•„์›ƒ ๋ฐ ์„ค๊ณ„์˜ ํ•ต์‹ฌ ์š”์†Œ


ํšจ์œจ์ ์ธ ์ž‘์—… ํ๋ฆ„: ์‹คํ—˜์‹ค ๋‚ด ์ž‘์—…์ž๋“ค์˜ ๋™์„ ๊ณผ ์žฅ๋น„ ๋ฐฐ์น˜๋ฅผ ์ตœ์ ํ™”ํ•˜์—ฌ, ์‹คํ—˜์ด ํšจ์œจ์ ์œผ๋กœ ์ง„ํ–‰๋  ์ˆ˜ ์žˆ๋„๋ก ํ•จ. 

์•ˆ์ „์„ฑ ๋ณด์žฅ: ํ™”ํ•™ ๋ฌผ์งˆ, ์ƒ๋ฌผํ•™์  ์œ„ํ—˜, ์ „๊ธฐ, ๊ธฐ๊ณ„์  ์œ„ํ—˜์œผ๋กœ๋ถ€ํ„ฐ ์•ˆ์ „ํ•˜๊ฒŒ ์‹คํ—˜์„ ์ˆ˜ํ–‰ํ•  ์ˆ˜ ์žˆ๋„๋ก ํ•จ. 

๊ทœ์ • ์ค€์ˆ˜: ๊ตญ์ œ ๋ฐ ๊ตญ๊ฐ€ ์•ˆ์ „ ๊ทœ์ •, ํ™”ํ•™ ๋ฌผ์งˆ ๋ฐ ํ๊ธฐ๋ฌผ ๊ด€๋ฆฌ๋ฒ•, ๊ณต์กฐ ๋ฐ ํ™˜๊ธฐ ๊ทœ์ • ๋“ฑ์„ ์ค€์ˆ˜ํ•˜๋Š” ์‹คํ—˜์‹ค์„ ์„ค๊ณ„ ํ•จ. 

์œ ์—ฐ์„ฑ: ์‹คํ—˜์‹ค์€ ๋‹ค์–‘ํ•œ ์‹คํ—˜์„ ์ง€์›ํ•  ์ˆ˜ ์žˆ๋„๋ก ์œ ์—ฐํ•˜๊ฒŒ ์„ค๊ณ„๋˜์–ด์•ผ ํ•˜๋ฉฐ, ํ•„์š”์— ๋”ฐ๋ผ ์žฅ๋น„์™€ ๊ตฌ์—ญ์„ ์‰ฝ๊ฒŒ ์žฌ๋ฐฐ์น˜ํ•  ์ˆ˜ ์žˆ์–ด์•ผ ํ•จ.


์‹คํ—˜์‹ค์˜ ๋ชฉ์  ๋ฐ ๋ชฉํ‘œ


์—ฐ๊ตฌ ๋ชฉ์ 

์‹คํ—˜์‹ค์—์„œ ์ฃผ๋กœ ์ˆ˜ํ–‰ํ•  ์—ฐ๊ตฌ๋‚˜ ์‹คํ—˜์˜ ์„ฑ๊ฒฉ์„ ๋ช…ํ™•ํžˆ ์ •์˜ํ•ด์•ผ ํ•จ. 

์ด๋Š” ์‹คํ—˜์‹ค์˜ ์„ค๊ณ„์™€ ๋ ˆ์ด์•„์›ƒ์— ์ง์ ‘์ ์ธ ์˜ํ–ฅ์„ ๋ฏธ์นจ. 

์˜ˆ๋ฅผ ๋“ค์–ด, ํ™”ํ•™ ์‹คํ—˜์‹ค, ์ƒ๋ช…๊ณผํ•™ ์—ฐ๊ตฌ์‹ค, ๋ฌผ๋ฆฌํ•™ ์‹คํ—˜์‹ค ๋“ฑ ๊ฐ ์—ฐ๊ตฌ ๋ถ„์•ผ์— ๋”ฐ๋ผ ์š”๊ตฌ๋˜๋Š” ์„ค๋น„์™€ ์žฅ๋น„ ๋ฐฐ์น˜๊ฐ€ ๋‹ฌ๋ผ ์ง. 

์‹คํ—˜ ๊ทœ๋ชจ

์‹คํ—˜์˜ ๊ทœ๋ชจ์— ๋”ฐ๋ผ ์‹คํ—˜์‹ค์˜ ํฌ๊ธฐ์™€ ์žฅ๋น„ ๋ฐฐ์น˜๊ฐ€ ๋‹ฌ๋ผ ์ง. 

๋Œ€๊ทœ๋ชจ ์—ฐ๊ตฌ ์‹œ์„ค์€ ์žฅ๋น„์™€ ๊ตฌ์—ญ์˜ ์„ธ๋ถ„ํ™”๊ฐ€ ํ•„์š”ํ•˜๋ฉฐ, ์†Œ๊ทœ๋ชจ ์‹คํ—˜์‹ค์€ ๊ณต๊ฐ„์˜ ๋‹ค๋ชฉ์  ์‚ฌ์šฉ์„ ๊ณ ๋ คํ•ด์•ผ ํ•จ. 

ํ–ฅํ›„ ํ™•์žฅ ๊ฐ€๋Šฅ์„ฑ

์—ฐ๊ตฌ์˜ ํ™•์žฅ ๊ฐ€๋Šฅ์„ฑ์ด๋‚˜ ์‹คํ—˜์‹ค์˜ ์šฉ๋„๊ฐ€ ๋ณ€ํ™”ํ•  ๊ฐ€๋Šฅ์„ฑ์„ ๊ณ ๋ คํ•ด, ๋ฏธ๋ž˜์—๋„ ์œ ์—ฐํ•˜๊ฒŒ ๋Œ€์‘ํ•  ์ˆ˜ ์žˆ๋Š” ์„ค๊ณ„๋ฅผ ๊ณ ๋ คํ•ด์•ผ ํ•ฉ.

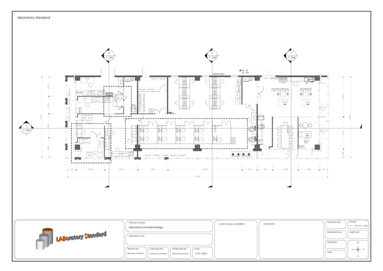
์‹คํ—˜์‹ค ์„ค๊ณ„์˜ ์ฃผ์š” ์š”์†Œ


์‹คํ—˜์‹ค์˜ ์šฉ๋„์— ๋”ฐ๋ฅธ ๊ตฌ์—ญ ๋ถ„๋ฆฌ

์‹คํ—˜์‹ค ์„ค๊ณ„๋Š” ์—ฐ๊ตฌ ๋ชฉ์ ์— ๋”ฐ๋ผ ๋‹ค๋ฆ…๋‹ˆ๋‹ค. ์˜ˆ๋ฅผ ๋“ค์–ด, ํ™”ํ•™ ์‹คํ—˜์‹ค๊ณผ ์ƒ๋ฌผํ•™ ์‹คํ—˜์‹ค์˜ ์š”๊ตฌ ์‚ฌํ•ญ์€ ๋‹ค๋ฅด๋ฉฐ, ๊ฐ๊ฐ์˜ ์‹คํ—˜์‹ค ์œ ํ˜•์— ๋งž์ถ˜ ๊ตฌ์—ญ ๋ถ„๋ฆฌ๊ฐ€ ํ•„์š”.


ํ™”ํ•™ ์‹คํ—˜์‹ค: ์œ„ํ—˜ ํ™”ํ•™๋ฌผ์งˆ์„ ๋‹ค๋ฃจ๋ฏ€๋กœ, ํ™”์žฌ ๋ฐ ํญ๋ฐœ ์œ„ํ—˜์„ ๊ณ ๋ คํ•˜์—ฌ ๋ณ„๋„์˜ ํ™˜๊ธฐ ๋ฐ ํ›„๋“œ ์‹œ์Šคํ…œ์ด ํ•„์š”. 

์ƒ๋ฌผํ•™ ์‹คํ—˜์‹ค: ์ƒ๋ฌผํ•™์  ์œ„ํ—˜ ๋ฌผ์งˆ์„ ๋‹ค๋ฃจ๋Š” ๊ตฌ์—ญ์€ ๋ฐ”์ด์˜ค ์„ธ์ดํ”„ํ‹ฐ ๋ ˆ๋ฒจ(BSL)์— ๋”ฐ๋ผ ์„ค๊ณ„๋˜์–ด์•ผ ํ•˜๋ฉฐ, ๋ฉธ๊ท  ๊ตฌ์—ญ๊ณผ ์˜ค์—ผ ๊ตฌ์—ญ์„ ๋ถ„๋ฆฌ. 

๋ฌผ๋ฆฌํ•™/์ „์ž ์‹คํ—˜์‹ค: ์ „๊ธฐ์  ์œ„ํ—˜์ด๋‚˜ ๊ณ ์ „์•• ์žฅ๋น„๊ฐ€ ์‚ฌ์šฉ๋˜๋Š” ์‹คํ—˜์‹ค์€ ์ „๊ธฐ ์•ˆ์ „ ๊ทœ์ •์„ ์ถฉ์กฑํ•ด์•ผ ํ•˜๋ฉฐ, ์ „์žํŒŒ ์ฐจํ ์„ค๊ณ„๊ฐ€ ํ•„์š” ํ•จ.


์‹คํ—˜์‹ค์˜ ๋™์„  ์ตœ์ ํ™”

์ž‘์—…์ž์˜ ๋™์„ : ์‹คํ—˜์‹ค ๋‚ด ์ž‘์—…์ž์˜ ์ด๋™ ๊ฒฝ๋กœ๋ฅผ ๊ณ ๋ คํ•˜์—ฌ ์žฅ๋น„๋ฅผ ๋ฐฐ์น˜ํ•˜๊ณ , ์‹คํ—˜ ์ ˆ์ฐจ๋ฅผ ๋ฐฉํ•ดํ•˜์ง€ ์•Š๋„๋ก ๋™์„ ์„ ์„ค๊ณ„. 

๋ฌผ๋ฆฌ์  ๊ฑฐ๋ฆฌ๊ฐ€ ์ตœ์†Œํ™”๋˜๋„๋ก ์ฃผ์š” ์žฅ๋น„์™€ ์ž‘์—… ๊ณต๊ฐ„์„ ๋ฐฐ์น˜. 

์žฌ๋ฃŒ ๋ฐ ์‹œ์•ฝ์˜ ์ด๋™: ์‹œ์•ฝ๊ณผ ์‹คํ—˜ ์žฌ๋ฃŒ๊ฐ€ ์•ˆ์ „ํ•˜๊ฒŒ ์ด๋™๋  ์ˆ˜ ์žˆ๋„๋ก ๋ณ„๋„์˜ ์ด๋™ ๊ฒฝ๋กœ์™€ ์ €์žฅ ๊ณต๊ฐ„์„ ํ™•๋ณด.


์‹คํ—˜์‹ค ์žฅ๋น„ ๋ฐฐ์น˜

์‹คํ—˜์‹ค์˜ ์ฃผ์š” ์žฅ๋น„๋Š” ์—ฐ๊ตฌ์˜ ํšจ์œจ์„ฑ๊ณผ ์•ˆ์ „์„ ๋†’์ด๊ธฐ ์œ„ํ•ด ์‹ ์ค‘ํ•˜๊ฒŒ ๋ฐฐ์น˜. 

์‹คํ—˜๋Œ€: ์‹คํ—˜๋Œ€๋Š” ์‹คํ—˜์‹ค์˜ ์ค‘์‹ฌ์— ๋ฐฐ์น˜๋˜๋ฉฐ, ์‹คํ—˜ ํ™œ๋™์„ ์ง€์›ํ•  ์ˆ˜ ์žˆ๋Š” ์ ์ ˆํ•œ ์ž‘์—… ๊ณต๊ฐ„์„ ์ œ๊ณต. 

์ €์žฅ ๊ณต๊ฐ„: ํ™”ํ•™ ๋ฌผ์งˆ, ์‹œ์•ฝ, ์ƒ˜ํ”Œ์„ ๋ณด๊ด€ํ•  ์•ˆ์ „ํ•œ ๊ณต๊ฐ„์„ ํ™•๋ณด. 

์œ„ํ—˜๋ฌผ์งˆ์€ ๊ทœ์ •์— ๋งž๋Š” ์ €์žฅ์†Œ์— ๋ณด๊ด€. 

์žฅ๋น„์‹ค: ํฐ ์žฅ๋น„(์›์‹ฌ๋ถ„๋ฆฌ๊ธฐ, ์˜ค๋ธ, ์‹คํ—˜ ๊ธฐ๊ธฐ ๋“ฑ)๋ฅผ ์œ„ํ•œ ์ „์šฉ ์žฅ๋น„์‹ค์„ ๋งˆ๋ จํ•˜์—ฌ ์—ฐ๊ตฌ์ž๊ฐ€ ์ ‘๊ทผํ•˜๊ธฐ ์‰ฝ๋„๋ก ํ•ด์•ผ ํ•จ.

ํ™˜๊ธฐ ๋ฐ ๊ณต์กฐ ์‹œ์Šคํ…œ ์„ค๊ณ„

์‹คํ—˜์‹ค์—์„œ๋Š” ์ ์ ˆํ•œ ํ™˜๊ธฐ์™€ ๊ณต์กฐ ์‹œ์Šคํ…œ์ด ํ•„์ˆ˜. 

์œ„ํ—˜ํ•œ ํ™”ํ•™ ๋ฌผ์งˆ, ์ƒ๋ฌผํ•™์  ์œ„ํ—˜ ๋ฌผ์งˆ์ด ์•ˆ์ „ํ•˜๊ฒŒ ๋ฐฐ์ถœ๋˜๊ณ , ์‹ ์„ ํ•œ ๊ณต๊ธฐ๊ฐ€ ์‹คํ—˜์‹ค์— ์œ ์ž…๋˜๋„๋ก ํ•ด์•ผ ํ•จ. 

๋ฐฐ๊ธฐ ํ›„๋“œ: ์œ ํ•ด ํ™”ํ•™๋ฌผ์งˆ์„ ๋‹ค๋ฃฐ ๋•Œ ํ•„์š”ํ•œ ์žฅ๋น„๋กœ, ์‹คํ—˜๋Œ€ ์œ„์— ๋ฐฐ์น˜ํ•ด ์ฆ๊ธฐ๋‚˜ ๊ฐ€์Šค๋ฅผ ๋ฐฐ์ถœํ•  ์ˆ˜ ์žˆ๋„๋ก ํ•จ. 

์Œ์••/์–‘์•• ์ œ์–ด: ์˜ค์—ผ๋ฌผ์งˆ์ด ์‹คํ—˜์‹ค ๋ฐ–์œผ๋กœ ์ƒˆ์–ด ๋‚˜๊ฐ€์ง€ ์•Š๋„๋ก ์Œ์••์„ ์œ ์ง€ํ•˜๊ฑฐ๋‚˜, ์ฒญ์ • ๊ตฌ์—ญ์—์„œ๋Š” ์–‘์••์„ ์œ ์ง€ํ•˜์—ฌ ์™ธ๋ถ€ ์˜ค์—ผ์ด ๋“ค์–ด์˜ค์ง€ ์•Š๋„๋ก ํ•จ.


์•ˆ์ „ ์„ค๋น„ ๋ฐฐ์น˜

๋น„์ƒ ์ƒค์›Œ ๋ฐ ์•„์ด์ƒค์›Œ: ํ™”ํ•™๋ฌผ์งˆ์ด ํ”ผ๋ถ€๋‚˜ ๋ˆˆ์— ํŠ€์—ˆ์„ ๋•Œ ์ฆ‰์‹œ ์‚ฌ์šฉํ•  ์ˆ˜ ์žˆ๋Š” ์œ„์น˜์— ๋ฐฐ์น˜. 

์†Œํ™”๊ธฐ ๋ฐ ํ™”์žฌ ๊ฒฝ๋ณด ์‹œ์Šคํ…œ: ํ™”์žฌ๊ฐ€ ๋ฐœ์ƒํ–ˆ์„ ๋•Œ ์‹ ์†ํ•˜๊ฒŒ ๋Œ€์ฒ˜ํ•  ์ˆ˜ ์žˆ๋„๋ก ์†Œํ™”๊ธฐ์™€ ํ™”์žฌ ๊ฒฝ๋ณด ์‹œ์Šคํ…œ์„ ์„ค์น˜ํ•ด์•ผ ํ•จ. 

์‘๊ธ‰์ฒ˜์น˜ ํ‚คํŠธ ๋ฐ ๋น„์ƒ ๋Œ€ํ”ผ๋กœ: ์‹คํ—˜์‹ค ์‚ฌ๊ณ  ์‹œ ์‚ฌ์šฉํ•  ์ˆ˜ ์žˆ๋Š” ์‘๊ธ‰์ฒ˜์น˜ ํ‚คํŠธ์™€ ๋Œ€ํ”ผ ๊ฒฝ๋กœ๋ฅผ ํ™•๋ณดํ•ด์•ผ ํ•จ.


์ „๋ ฅ ๋ฐ ๋ฐ์ดํ„ฐ ์‹œ์Šคํ…œ ์„ค๊ณ„

์‹คํ—˜์‹ค์—์„œ ์‚ฌ์šฉํ•˜๋Š” ์žฅ๋น„๋Š” ๋Œ€๋ถ€๋ถ„ ์ „๋ ฅ์„ ๋งŽ์ด ์†Œ๋ชจํ•˜๋ฏ€๋กœ, ์ „๊ธฐ ์‹œ์Šคํ…œ์˜ ์„ค๊ณ„๋Š” ๋งค์šฐ ์ค‘์š”. 

์ „๊ธฐ ๋ฐฐ์„  ์„ค๊ณ„: ์žฅ๋น„์˜ ์ „๋ ฅ ์š”๊ตฌ ์‚ฌํ•ญ์— ๋งž๋Š” ์ „๊ธฐ ๋ฐฐ์„ ์„ ์„ค๊ณ„ํ•˜๊ณ , ๊ณผ๋ถ€ํ•˜ ๋ฐฉ์ง€ ์žฅ์น˜๋ฅผ ํฌํ•จ. 

๋ฐ์ดํ„ฐ ์—ฐ๊ฒฐ: ํ˜„๋Œ€ ์‹คํ—˜์‹ค์—์„œ๋Š” ์‹คํ—˜ ๋ฐ์ดํ„ฐ ์ˆ˜์ง‘ ๋ฐ ๋ถ„์„์„ ์œ„ํ•œ ๋„คํŠธ์›Œํฌ ์—ฐ๊ฒฐ์ด ํ•„์ˆ˜. 

๊ฐ ์‹คํ—˜๋Œ€๋‚˜ ์žฅ๋น„์— ์ ์ ˆํ•œ ๋ฐ์ดํ„ฐ ํฌํŠธ์™€ ์ „๊ธฐ ์ฝ˜์„ผํŠธ๋ฅผ ์„ค์น˜.


ํ๊ธฐ๋ฌผ ๊ด€๋ฆฌ ์‹œ์Šคํ…œ 

ํ™”ํ•™๋ฌผ์งˆ ํ๊ธฐ: ์œ„ํ—˜ํ•œ ํ™”ํ•™๋ฌผ์งˆ์€ ๋ณ„๋„์˜ ํ๊ธฐ ์‹œ์Šคํ…œ์„ ํ†ตํ•ด ์•ˆ์ „ํ•˜๊ฒŒ ์ฒ˜๋ฆฌํ•ด์•ผ ํ•จ. 

์‹คํ—˜์‹ค ์„ค๊ณ„ ์‹œ ํ™”ํ•™๋ฌผ์งˆ ํ๊ธฐ ๊ตฌ์—ญ๊ณผ ์ €์žฅ ๊ณต๊ฐ„์„ ํ™•๋ณด. 

์ƒ๋ฌผํ•™์  ํ๊ธฐ๋ฌผ ๊ด€๋ฆฌ: ์ƒ๋ฌผํ•™์  ์˜ค์—ผ ๋ฌผ์งˆ์€ ๋ฉธ๊ท ๋œ ์ƒํƒœ๋กœ ํ๊ธฐ๋˜์–ด์•ผ ํ•˜๋ฏ€๋กœ, ๋ณ„๋„์˜ ๋ฉธ๊ท  ๋ฐ ํ๊ธฐ ์‹œ์Šคํ…œ์ด ํ•„์š”.

์‹คํ—˜์‹ค ์„ค๊ณ„ ๊ณผ์ •


์š”๊ตฌ ์‚ฌํ•ญ ๋ถ„์„

์‹คํ—˜์‹ค ์„ค๊ณ„๋Š” ์‚ฌ์šฉ์ž์˜ ์š”๊ตฌ๋ฅผ ์ฒ ์ €ํžˆ ๋ฐ˜์˜ํ•ด์•ผ ํ•ฉ๋‹ˆ๋‹ค. ์ด๋ฅผ ์œ„ํ•ด ๋‹ค์Œ ์‚ฌํ•ญ์„ ๋ถ„์„.


์‹คํ—˜์‹ค์˜ ์šฉ๋„(ํ™”ํ•™, ์ƒ๋ฌผํ•™, ๋ฌผ๋ฆฌํ•™, ์ „์ž ๋“ฑ) 

์‹คํ—˜ ๊ณผ์ •์—์„œ ๋‹ค๋ฃจ๋Š” ๋ฌผ์งˆ ๋ฐ ์œ„ํ—˜ ์š”์†Œ 

์‹คํ—˜ ์žฅ๋น„์˜ ํฌ๊ธฐ์™€ ์ „๋ ฅ ์š”๊ตฌ ์‚ฌํ•ญ 

์‹คํ—˜์‹ค ์•ˆ์ „ ๊ทœ์ • ์ค€์ˆ˜ ์—ฌ๋ถ€


์„ค๊ณ„ ๋„๋ฉด ์ž‘์„ฑ


์ดˆ๊ธฐ ์„ค๊ณ„: ์š”๊ตฌ ์‚ฌํ•ญ ๋ถ„์„์„ ๋ฐ”ํƒ•์œผ๋กœ ์‹คํ—˜์‹ค์˜ ์ดˆ๊ธฐ ์„ค๊ณ„ ๋„๋ฉด์„ ์ž‘์„ฑ. 

์ด ๊ณผ์ •์—์„œ ์‹คํ—˜๋Œ€ ๋ฐฐ์น˜, ์žฅ๋น„ ๋ฐฐ์น˜, ํ™˜๊ธฐ ์‹œ์Šคํ…œ, ์ „๋ ฅ ๋ฐ ๋ฐ์ดํ„ฐ ์—ฐ๊ฒฐ ๋“ฑ์„ ํฌํ•จ. 

์„ธ๋ถ€ ์„ค๊ณ„: ๊ฐ ๊ตฌ์—ญ์˜ ๊ตฌ์ฒด์ ์ธ ํฌ๊ธฐ์™€ ์œ„์น˜๋ฅผ ์„ค์ •ํ•˜๊ณ , ์žฅ๋น„ ๋ฐ ์•ˆ์ „ ์„ค๋น„์˜ ๋ฐฐ์น˜๋ฅผ ํ™•์ •.

์„ค๊ณ„ ๊ฒ€ํ†  ๋ฐ ํ”ผ๋“œ๋ฐฑ

์„ค๊ณ„ ๋„๋ฉด์ด ์™„์„ฑ๋˜๋ฉด ์‚ฌ์šฉ์ž์™€ ํ˜‘๋ ฅํ•˜์—ฌ ์„ค๊ณ„๋ฅผ ๊ฒ€ํ† ํ•˜๊ณ  ํ”ผ๋“œ๋ฐฑ์„ ๋ฐ˜์˜. 

์•ˆ์ „ ๊ทœ์ • ์ค€์ˆ˜ ์—ฌ๋ถ€๋ฅผ ํ™•์ธํ•˜๊ณ , ํ•„์š”ํ•œ ๊ฐœ์„  ์‚ฌํ•ญ์„ ๋ฐ˜์˜ํ•˜์—ฌ ์ตœ์ข… ๋„๋ฉด์„ ํ™•์ •.


๊ฑด์„ค ๋ฐ ์„ค์น˜ 

์„ค๊ณ„๊ฐ€ ์™„๋ฃŒ๋˜๋ฉด, ๊ฑด์„ค ๋ฐ ์žฅ๋น„ ์„ค์น˜๋ฅผ ์‹œ์ž‘ ํ•จ. 

์ „๊ธฐ, ๋ฐฐ๊ธฐ, ํ™˜๊ธฐ ์‹œ์Šคํ…œ ๋“ฑ์˜ ๊ธฐ์ˆ ์  ์š”๊ตฌ ์‚ฌํ•ญ์„ ํฌํ•จํ•˜์—ฌ ์‹คํ—˜์‹ค ๊ตฌ์กฐ๋ฌผ์„ ์™„์„ฑ.


์‹œ์šด์ „ ๋ฐ ํ…Œ์ŠคํŠธ 

์‹คํ—˜์‹ค์ด ์™„๊ณต๋œ ํ›„, ์„ค์น˜๋œ ์‹œ์Šคํ…œ์ด ์ ์ ˆํ•˜๊ฒŒ ์ž‘๋™ํ•˜๋Š”์ง€ ํ…Œ์ŠคํŠธ ํ•จ. 

ํ™˜๊ธฐ, ์ „๋ ฅ, ์•ˆ์ „ ์„ค๋น„, ๋ฐ์ดํ„ฐ ์—ฐ๊ฒฐ ๋“ฑ์˜ ์‹œ์Šคํ…œ์„ ํ…Œ์ŠคํŠธํ•˜๊ณ , ํ•„์š”์— ๋”ฐ๋ผ ์กฐ์ • ํ•จ.

์‹คํ—˜์‹ค ์„ค๊ณ„ ์‹œ ๊ณ ๋ คํ•ด์•ผ ํ•  ๋ฒ•๊ทœ ๋ฐ ํ‘œ์ค€


ISO 15189: ์ž„์ƒ ์‹คํ—˜์‹ค ํ’ˆ์งˆ ๋ฐ ๋Šฅ๋ ฅ์— ๋Œ€ํ•œ ๊ตญ์ œ ํ‘œ์ค€ 

OSHA(Occupational Safety and Health Administration): ์‹คํ—˜์‹ค ๋‚ด ์•ˆ์ „๊ณผ ๊ฑด๊ฐ•์„ ์œ„ํ•œ ๊ทœ์ • 

NFPA 45: ์‹คํ—˜์‹ค ํ™”์žฌ ์•ˆ์ „ ๊ธฐ์ค€ 

BSL(Biological Safety Levels): ์ƒ๋ฌผํ•™์  ์œ„ํ—˜ ๋ฌผ์งˆ์„ ๋‹ค๋ฃจ๋Š” ์‹คํ—˜์‹ค์˜ ์•ˆ์ „ ํ‘œ์ค€

์‹คํ—˜์‹ค ๋ ˆ์ด์•„์›ƒ ๋ฐ ์„ค๊ณ„๋Š” ์—ฐ๊ตฌ ํ™˜๊ฒฝ์˜ ํšจ์œจ์„ฑ๊ณผ ์•ˆ์ „์„ฑ์„ ๋ณด์žฅํ•˜๋Š” ๋ฐ ์ค‘์š”ํ•œ ์—ญํ• ์„ ํ•จ. 

์‹คํ—˜์‹ค์ด ๋‹ค๋ฃจ๋Š” ์—ฐ๊ตฌ์˜ ๋ชฉ์ , ์žฅ๋น„, ๋ฌผ์งˆ์— ๋งž๊ฒŒ ์„ค๊ณ„๋œ ์‹คํ—˜์‹ค์€ ์ž‘์—…์ž์˜ ์•ˆ์ „์„ ๋ณด์žฅํ•˜๊ณ , ์—ฐ๊ตฌ์˜ ์ƒ์‚ฐ์„ฑ์„ ๊ทน๋Œ€ํ™”ํ•  ์ˆ˜ ์žˆ์Œ.

์ž‘์—… ํ๋ฆ„ ๋ฐ ๋™์„  ์ตœ์ ํ™” 


์ž‘์—… ํ๋ฆ„ ๋ถ„์„

์‹คํ—˜์‹ค ์„ค๊ณ„์˜ ๊ธฐ๋ณธ์€ ์ž‘์—… ํ๋ฆ„์„ ๋ถ„์„ํ•˜๋Š” ๊ฒƒ์ž„. 

์—ฐ๊ตฌ์›๋“ค์ด ์‹คํ—˜์„ ์ˆ˜ํ–‰ํ•  ๋•Œ ์–ด๋–ค ์ˆœ์„œ๋กœ ์ž‘์—…์„ ์ง„ํ–‰ํ•˜๋Š”์ง€, ์–ด๋–ค ์žฅ๋น„๋ฅผ ์‚ฌ์šฉํ•˜๋Š”์ง€ ํŒŒ์•…ํ•ด์•ผ ํ•จ. 

์ด๋ฅผ ํ†ตํ•ด ์—ฐ๊ตฌ์›์ด ํ•„์š”ํ•œ ์žฅ๋น„์™€ ๋„๊ตฌ๋ฅผ ๊ฐ€์žฅ ํšจ์œจ์ ์ธ ์œ„์น˜์— ๋ฐฐ์น˜ํ•  ์ˆ˜ ์žˆ์Œ. 

๋™์„  ์ตœ์ ํ™”

์ž‘์—… ๋™์„ ์„ ์ตœ์†Œํ™”ํ•˜์—ฌ ์—ฐ๊ตฌ์›๋“ค์ด ํšจ์œจ์ ์œผ๋กœ ์ด๋™ํ•˜๊ณ  ์ž‘์—…ํ•  ์ˆ˜ ์žˆ๋„๋ก ์„ค๊ณ„ํ•ด์•ผ ํ•จ. 

ํ•„์š”ํ•œ ์žฅ๋น„๋‚˜ ์ž‘์—… ๊ตฌ์—ญ์ด ๊ฐ€๊นŒ์ด ๋ฐฐ์น˜๋˜๋„๋ก ํ•˜๊ณ , ๋ถˆํ•„์š”ํ•œ ์ด๋™์„ ์ตœ์†Œํ™” ํ•จ. 

์ž‘์—…๋Œ€ ๋ฐฐ์น˜

์‹คํ—˜๋Œ€์™€ ์ž‘์—…๋Œ€๋ฅผ ์ž‘์—… ํ๋ฆ„์— ๋งž๊ฒŒ ๋ฐฐ์น˜ํ•ด์•ผ ํ•˜๋ฉฐ, ์—ฐ๊ตฌ์›๋“ค์ด ์‹คํ—˜ ์ค‘ ์‰ฝ๊ฒŒ ์ ‘๊ทผํ•˜๊ณ  ํ˜‘์—…ํ•  ์ˆ˜ ์žˆ๋Š” ํ™˜๊ฒฝ์„ ์ œ๊ณต ํ•จ.

์žฅ๋น„ ๋ฐฐ์น˜ ๋ฐ ์ „๋ ฅ ์š”๊ตฌ ์‚ฌํ•ญ 


์žฅ๋น„ ๋ฐฐ์น˜ ๊ณ„ํš 

์‹คํ—˜์‹ค ๋‚ด์—์„œ ์‚ฌ์šฉ๋  ์ฃผ์š” ์žฅ๋น„์˜ ๋ฐฐ์น˜๋Š” ํšจ์œจ์ ์ธ ์ž‘์—…๊ณผ ์‹คํ—˜ ํ๋ฆ„์— ํฐ ์˜ํ–ฅ์„ ๋ฏธ์นจ.

์žฅ๋น„๋Š” ์‚ฌ์šฉ ๋นˆ๋„, ํ•„์š” ์ „๋ ฅ, ๋ฐฐ๊ธฐ ๋ฐ ๋ƒ‰๊ฐ ์‹œ์Šคํ…œ ์š”๊ตฌ ์‚ฌํ•ญ ๋“ฑ์„ ๊ณ ๋ คํ•˜์—ฌ ๋ฐฐ์น˜ํ•ด์•ผ ํ•จ. 

์ „๋ ฅ ๊ณต๊ธ‰ ์„ค๊ณ„ 

์‹คํ—˜ ์žฅ๋น„์˜ ์ „๋ ฅ ์š”๊ตฌ ์‚ฌํ•ญ์— ๋งž์ถฐ ์ „๊ธฐ ๋ฐฐ์„ ์„ ์„ค๊ณ„ํ•˜๊ณ , ์ „๋ ฅ ๊ณต๊ธ‰ ์‹œ์Šคํ…œ์ด ๊ฐ ์žฅ๋น„์— ์•ˆ์ •์ ์œผ๋กœ ๊ณต๊ธ‰๋  ์ˆ˜ ์žˆ๋„๋ก ๊ณ„ํš.

๊ณ ์ „๋ ฅ ์žฅ๋น„์˜ ๊ฒฝ์šฐ ๋ณ„๋„์˜ ์ „๋ ฅ ๋ผ์ธ์ด ํ•„์š”ํ•  ์ˆ˜ ์žˆ์Œ. 

ํ™˜๊ธฐ ๋ฐ ๋ƒ‰๊ฐ ์„ค๋น„

๋ฐœ์—ด์ด๋‚˜ ๋ฐฐ๊ธฐ๊ฐ€์Šค๋ฅผ ๋ฐœ์ƒ์‹œํ‚ค๋Š” ์žฅ๋น„๋Š” ์ ์ ˆํ•œ ํ™˜๊ธฐ ์‹œ์Šคํ…œ๊ณผ ๋ƒ‰๊ฐ ์‹œ์Šคํ…œ์ด ํ•„์š”ํ•˜๋ฉฐ. ํŠนํžˆ, ํ™”ํ•™ ์‹คํ—˜์‹ค์—์„œ๋Š” ๋ฐฐ๊ธฐ ํ›„๋“œ๋‚˜ ๊ณต๊ธฐ ์ฒญ์ • ์‹œ์Šคํ…œ์ด ํ•„์ˆ˜์  ์ž„.

์•ˆ์ „ ์„ค๊ณ„ ๋ฐ ๋ฒ•์  ๊ทœ์ œ ์ค€์ˆ˜ 


์•ˆ์ „ ์„ค๋น„

์‹คํ—˜์‹ค์˜ ์•ˆ์ „์„ ์œ„ํ•ด ํ™”ํ•™๋ฌผ์งˆ ์ทจ๊ธ‰ ๊ตฌ์—ญ, ๊ณ ์˜จ ์žฅ๋น„ ์‚ฌ์šฉ ๊ตฌ์—ญ, ์ƒ๋ฌผ์•ˆ์ „ ๊ตฌ์—ญ ๋“ฑ์—๋Š” ํ•„์ˆ˜ ์•ˆ์ „ ์žฅ๋น„๋ฅผ ์„ค์น˜ํ•ด์•ผ ํ•จ. 

์†Œํ™”๊ธฐ, ๋น„์ƒ ์ƒค์›Œ ์žฅ์น˜, ์•ˆ์ „ ์„ธ์ฒ™ ์žฅ๋น„ ๋“ฑ์ด ๋Œ€ํ‘œ์ ์ธ ์•ˆ์ „ ์„ค๋น„ ์ž„. 

๋ฐฐ๊ธฐ ์‹œ์Šคํ…œ

ํ™”ํ•™๋ฌผ์งˆ์„ ์ทจ๊ธ‰ํ•˜๊ฑฐ๋‚˜ ์œ ํ•ด ๊ฐ€์Šค๋ฅผ ์‚ฌ์šฉํ•˜๋Š” ๊ฒฝ์šฐ, ํšจ์œจ์ ์ธ ๋ฐฐ๊ธฐ ์‹œ์Šคํ…œ์„ ํ†ตํ•ด ์œ ํ•ด๋ฌผ์งˆ์„ ์ œ๊ฑฐํ•  ์ˆ˜ ์žˆ์–ด์•ผ ํ•จ. 

๋ฐฐ๊ธฐ ํ›„๋“œ๋Š” ์œ„ํ—˜ ๋ฌผ์งˆ์„ ๋‹ค๋ฃจ๋Š” ๊ตฌ์—ญ ๊ทผ์ฒ˜์— ํ•„์ˆ˜์ ์œผ๋กœ ์„ค์น˜ํ•ด์•ผ ํ•˜๋ฉฐ, ๋ฐฐ๊ธฐ๊ตฌ๋Š” ์‹คํ—˜์‹ค ์™ธ๋ถ€๋กœ ์•ˆ์ „ํ•˜๊ฒŒ ์—ฐ๊ฒฐ๋˜์–ด์•ผ ํ•จ. 

๊ทœ์ œ ์ค€์ˆ˜

์‹คํ—˜์‹ค์ด ์œ„์น˜ํ•œ ๊ตญ๊ฐ€ ๋˜๋Š” ์ง€์—ญ์˜ ๋ฒ•์  ๊ทœ์ œ๋ฅผ ์ฒ ์ €ํžˆ ์ค€์ˆ˜ํ•ด์•ผ ํ•จ. 

ํ™”ํ•™๋ฌผ์งˆ๊ด€๋ฆฌ๋ฒ•, ์‚ฐ์—…์•ˆ์ „๋ณด๊ฑด๋ฒ•, ๋Œ€๊ธฐํ™˜๊ฒฝ๋ณด์ „๋ฒ• ๋“ฑ ์‹คํ—˜์‹ค์—์„œ ์‚ฌ์šฉํ•˜๋Š” ๋ฌผ์งˆ์ด๋‚˜ ์žฅ๋น„์— ๋Œ€ํ•œ ๋ฒ•์  ๊ทœ์ œ๋ฅผ ๋ฐ˜์˜ํ•œ ์„ค๊ณ„๊ฐ€ ํ•„์š”.

์ž‘์—…์ž์˜ ํŽธ์˜ ๋ฐ ์ธ์ฒด๊ณตํ•™์  ์„ค๊ณ„


์ธ์ฒด๊ณตํ•™์  ์„ค๊ณ„ 

์‹คํ—˜์‹ค ์„ค๊ณ„ ์‹œ ์ž‘์—…์ž์˜ ๊ฑด๊ฐ•๊ณผ ํŽธ์˜์„ฑ์„ ๊ณ ๋ ค. 

์ž‘์—…๋Œ€ ๋†’์ด ์กฐ์ ˆ, ํŽธ์•ˆํ•œ ์˜์ž, ์†์‰ฌ์šด ์žฅ๋น„ ์ ‘๊ทผ ๋“ฑ์ด ํฌํ•จ๋œ ์ธ์ฒด๊ณตํ•™์  ์„ค๊ณ„๋Š” ์ž‘์—…์ž์˜ ํ”ผ๋กœ๋„๋ฅผ ์ค„์ด๊ณ  ์ž‘์—… ํšจ์œจ์„ฑ์„ ๋†’์ด๋Š” ๋ฐ ๋„์›€์ด ๋จ. 


์กฐ๋ช… ์„ค๊ณ„

์‹คํ—˜์‹ค ๋‚ด ์ ์ ˆํ•œ ์กฐ๋ช… ์„ค๊ณ„๋Š” ์ž‘์—… ํ™˜๊ฒฝ์„ ๊ฐœ์„ ํ•˜๋Š” ์ค‘์š”ํ•œ ์š”์†Œ.

์ž์—ฐ ์ฑ„๊ด‘์„ ์ตœ๋Œ€ํ•œ ํ™œ์šฉํ•˜๋ฉด์„œ๋„, ์—ฐ๊ตฌ์— ํ•„์š”ํ•œ ๊ฒฝ์šฐ ํŠน์ˆ˜ ์กฐ๋ช…(์˜ˆ: UV์กฐ๋ช…, ์ ์™ธ์„  ์กฐ๋ช… ๋“ฑ)์„ ๋ฐฐ์น˜ํ•  ์ˆ˜ ์žˆ์–ด์•ผ ํ•จ.

์—๋„ˆ์ง€ ํšจ์œจ ๋ฐ ์นœํ™˜๊ฒฝ ์„ค๊ณ„


์—๋„ˆ์ง€ ์ ˆ์•ฝ ์„ค๊ณ„

์‹คํ—˜์‹ค์€ ๋งŽ์€ ์žฅ๋น„๋ฅผ ์‚ฌ์šฉํ•˜๋Š” ๋งŒํผ ์—๋„ˆ์ง€ ํšจ์œจ์„ฑ์„ ๊ณ ๋ คํ•œ ์„ค๊ณ„๊ฐ€ ํ•„์š”. 

๊ณ ํšจ์œจ ์กฐ๋ช…, ์—๋„ˆ์ง€ ์ ˆ๊ฐํ˜• ์žฅ๋น„, ์ž๋™ํ™”๋œ ์—๋„ˆ์ง€ ๊ด€๋ฆฌ ์‹œ์Šคํ…œ ๋“ฑ์„ ๋„์ž…ํ•˜์—ฌ ์—๋„ˆ์ง€ ์†Œ๋น„๋ฅผ ์ค„์ผ ์ˆ˜ ์žˆ์Œ. 


์ž์› ๊ด€๋ฆฌ

์‹คํ—˜์‹ค์—์„œ ์‚ฌ์šฉํ•˜๋Š” ๋ฌผ, ์ „๊ธฐ, ๊ฐ€์Šค ๋“ฑ์˜ ์ž์›์„ ํšจ์œจ์ ์œผ๋กœ ๊ด€๋ฆฌํ•  ์ˆ˜ ์žˆ๋Š” ์‹œ์Šคํ…œ์„ ๋งˆ๋ จํ•ด์•ผ ํ•˜๋ฉฐ, ์ž์› ๋‚ญ๋น„๋ฅผ ์ตœ์†Œํ™”ํ•  ์ˆ˜ ์žˆ๋Š” ์„ค๊ณ„๊ฐ€ ์ค‘์š”. 

์ž์› ์žฌํ™œ์šฉ์ด๋‚˜ ์žฌ์‚ฌ์šฉ ๊ฐ€๋Šฅํ•œ ์žฅ๋น„ ๋„์ž…๋„ ๊ณ ๋ คํ•ด์•ผ ํ•จ.

๋ฏธ๋ž˜ ํ™•์žฅ์„ฑ ๋ฐ ์œ ์—ฐ์„ฑ


ํ™•์žฅ ๊ฐ€๋Šฅ์„ฑ

์‹คํ—˜์‹ค ์„ค๊ณ„๋Š” ํ–ฅํ›„ ํ™•์žฅ์ด ๊ฐ€๋Šฅํ•œ ๊ตฌ์กฐ๋กœ ์„ค๊ณ„.

์—ฐ๊ตฌ ๋ฒ”์œ„๊ฐ€ ํ™•์žฅ๋˜๊ฑฐ๋‚˜ ์ƒˆ๋กœ์šด ์žฅ๋น„๊ฐ€ ์ถ”๊ฐ€๋  ์ˆ˜ ์žˆ๊ธฐ ๋•Œ๋ฌธ์—, ๊ฐ€๋ณ€ํ˜• ๋ฒฝ์ฒด๋‚˜ ๋ชจ๋“ˆํ˜• ์„ค๊ณ„๋ฅผ ํ†ตํ•ด ํ•„์š”์— ๋”ฐ๋ผ ๊ณต๊ฐ„์„ ์‰ฝ๊ฒŒ ์žฌ๋ฐฐ์น˜ํ•  ์ˆ˜ ์žˆ๋„๋ก ์„ค๊ณ„. 


์œ ์—ฐํ•œ ๋ฐฐ์น˜ ๊ตฌ์กฐ

์—ฐ๊ตฌ ๋ชฉ์ ์ด๋‚˜ ๊ธฐ์ˆ ์˜ ๋ณ€ํ™”์— ๋”ฐ๋ผ ์‹คํ—˜์‹ค ๊ตฌ์„ฑ์ด ๋ณ€ํ•  ์ˆ˜ ์žˆ์œผ๋ฏ€๋กœ ์œ ์—ฐํ•œ ๊ตฌ์กฐ๋ฅผ ๊ณ ๋ ค.

๋ชจ๋“ˆํ˜• ์‹คํ—˜๋Œ€, ์ด๋™์‹ ๊ฐ€๊ตฌ, ๊ฐ€๋ณ€ํ˜• ์žฅ๋น„ ๋ฐฐ์น˜ ๋“ฑ์„ ํ†ตํ•ด ๊ณต๊ฐ„์„ ์žฌ๊ตฌ์„ฑํ•  ์ˆ˜ ์žˆ์–ด์•ผ ํ•จ.

ํ˜‘์—… ๋ฐ ์†Œํ†ต์„ ์œ„ํ•œ ๊ณต๊ฐ„


ํ˜‘์—… ๊ณต๊ฐ„

ํ˜„๋Œ€ ์‹คํ—˜์‹ค์€ ํ˜‘์—…๊ณผ ์ปค๋ฎค๋‹ˆ์ผ€์ด์…˜์ด ์ค‘์š”ํ•œ ์š”์†Œ. 

์—ฐ๊ตฌ์›๋“ค์ด ์ž์œ ๋กญ๊ฒŒ ์˜์‚ฌ์†Œํ†ตํ•˜๊ณ  ์•„์ด๋””์–ด๋ฅผ ๊ตํ™˜ํ•  ์ˆ˜ ์žˆ๋Š” ๊ฐœ๋ฐฉํ˜• ์ž‘์—… ๊ณต๊ฐ„์ด๋‚˜ ํ† ๋ก  ๊ณต๊ฐ„์ด ํ•„์š”. 


๊ณต์œ  ๊ณต๊ฐ„ ์„ค๊ณ„

์žฅ๋น„์™€ ์ž์›์„ ๊ณต์œ ํ•  ์ˆ˜ ์žˆ๋Š” ๊ณต์œ  ๊ณต๊ฐ„์„ ๋งˆ๋ จํ•˜์—ฌ ์—ฐ๊ตฌ์ž ๊ฐ„์˜ ํ˜‘์—…์„ ์ด‰์ง„ํ•  ์ˆ˜ ์žˆ์Œ. 

์˜ˆ๋ฅผ ๋“ค์–ด, ํŠน์ • ๊ณ ๊ฐ€ ์žฅ๋น„๋‚˜ ํŠน์ˆ˜ ๋ถ„์„ ์žฅ๋น„๋Š” ์—ฌ๋Ÿฌ ์—ฐ๊ตฌ์ž๊ฐ€ ํ•จ๊ป˜ ์‚ฌ์šฉํ•  ์ˆ˜ ์žˆ๋Š” ๊ณต์šฉ ์žฅ๋น„์‹ค๋กœ ๋ฐฐ์น˜ํ•  ์ˆ˜ ์žˆ์Œ.

๊ธฐ์ˆ  ํ†ตํ•ฉ ๋ฐ ์ž๋™ํ™” ์‹œ์Šคํ…œ


๋””์ง€ํ„ธ ํ†ตํ•ฉ

๋ฏธ๋ž˜์˜ ์‹คํ—˜์‹ค์€ ๋””์ง€ํ„ธ ๊ธฐ์ˆ ๊ณผ ์ž๋™ํ™” ์‹œ์Šคํ…œ์ด ์ค‘์š”ํ•œ ์š”์†Œ.

์‹คํ—˜์‹ค ๋‚ด ๋ฐ์ดํ„ฐ ์ˆ˜์ง‘๊ณผ ๊ด€๋ฆฌ ์‹œ์Šคํ…œ์„ ํ†ตํ•ฉํ•˜๊ณ , IoT ๊ธฐ์ˆ ์„ ํ™œ์šฉํ•˜์—ฌ ์›๊ฒฉ ๊ด€๋ฆฌ์™€ ์‹ค์‹œ๊ฐ„ ๋ชจ๋‹ˆํ„ฐ๋ง์ด ๊ฐ€๋Šฅํ•˜๋„๋ก ์„ค๊ณ„. 


์ž๋™ํ™” ์žฅ๋น„

๋„์ž… ์ž๋™ํ™”๋œ ์‹คํ—˜ ์žฅ๋น„์™€ ๋กœ๋ด‡ ์‹œ์Šคํ…œ์„ ๋„์ž…ํ•˜์—ฌ ์‹คํ—˜์„ ํšจ์œจ์ ์œผ๋กœ ์ˆ˜ํ–‰ํ•  ์ˆ˜ ์žˆ๋„๋ก ์„ค๊ณ„.

์ž๋™ ์ƒ˜ํ”Œ๋ง, ์ž๋™ ํ”ผํŽซํŒ…, ๋ฐ์ดํ„ฐ ์ฒ˜๋ฆฌ ์ž๋™ํ™” ๋“ฑ์„ ํ†ตํ•ด ์—ฐ๊ตฌ ํšจ์œจ์„ฑ์„ ๋†’์ผ ์ˆ˜ ์žˆ์Œ.

์‹คํ—˜์‹ค์˜ ๋ฐฐ์น˜์™€ ๋ ˆ์ด์•„์›ƒ์€ ๊ณผํ•™ ์—ฐ๊ตฌ๋ฅผ ์ตœ๋Œ€ํ•œ ์›ํ™œํ•˜๊ฒŒ ํ•˜๊ณ  ์—ฐ๊ตฌ์ž๋ฅผ ์ตœ๋Œ€ํ•œ ํŽธ์•ˆํ•œ ๊ณต๊ฐ„์ด์–ด์•ผ ํ•จ. 

์ตœ์ ์˜ ์‹คํ—˜์‹ค ์„ค๊ณ„๋Š” ์ถ”๊ฐ€ ์ธ๋ ฅ์„ ์ถ”๊ฐ€ํ•˜์ง€ ์•Š๊ณ ๋„ ์ƒ์‚ฐ์„ฑ์„ ๋†’์ด๊ณ  ์˜ค๋ฅ˜๋ฅผ ์ตœ์†Œํ™”ํ•˜๋Š” ๋™์‹œ์— ์ด๋ฅผ ์ˆ˜ํ–‰ํ•  ์ˆ˜ ์žˆ์–ด์•ผ ํ•จ. 

์„ค๊ณ„์˜ ์•„์ฃผ ์ž‘์€ ์˜ค๋ฅ˜์กฐ์ฐจ๋„ ์ง€์—ฐ, ์‹ค์ˆ˜ ๋ฐ ์‚ฌ๊ณ ์˜ ์ฆ๊ฐ€, ์‹คํ—˜ ์†์ƒ์œผ๋กœ ์ด์–ด์งˆ ์ˆ˜ ์žˆ์œผ๋ฏ€๋กœ ๊ณผํ•™ ์‹คํ—˜์‹ค์˜ ๋ฐฐ์น˜๋Š” ์ตœ๊ณ  ์ˆ˜์ค€์˜ ํ‘œ์ค€์„ ์ค€์ˆ˜ํ•˜๋Š” ๊ฒƒ์ด ํ•„์ˆ˜. 

์‹คํ—˜์‹ค ๋ ˆ์ด์•„์›ƒ ๋ฐ ์„ค๊ณ„ ๋‹จ๊ณ„


๋ชฉ์  ๋ฐ ์š”๊ตฌ ์‚ฌํ•ญ ์ •์˜

์‹คํ—˜์‹ค์˜ ์—ฐ๊ตฌ ๋ชฉ์ ๊ณผ ํ•„์š”ํ•œ ์žฅ๋น„, ์•ˆ์ „ ์š”๊ตฌ ์‚ฌํ•ญ ๋“ฑ์„ ์ •์˜. 


ํ˜„์žฌ ์ƒํƒœ ๋ถ„์„

๊ธฐ์กด ์‹คํ—˜์‹ค์˜ ๊ตฌ์กฐ์™€ ์žฅ๋น„ ๋ฐฐ์น˜ ์ƒํƒœ๋ฅผ ๋ถ„์„ํ•˜๊ณ , ๊ฐœ์„ ์  ๋ฐ ํ™•์žฅ ๊ฐ€๋Šฅ์„ฑ์„ ํŒŒ์•…. 


๊ณต๊ฐ„ ๊ณ„ํš ์ˆ˜๋ฆฝ

์‹คํ—˜์‹ค์˜ ๊ณต๊ฐ„ ํ™œ์šฉ ๊ณ„ํš์„ ์ˆ˜๋ฆฝํ•˜๊ณ , ๊ตฌ์—ญ๋ณ„๋กœ ์‚ฌ์šฉ ๋ชฉ์ ์„ ์ •์˜. 

์ž‘์—… ํ๋ฆ„์„ ๊ณ ๋ คํ•ด ๋™์„  ์ตœ์ ํ™” ๊ณ„ํš์„ ์„ธ์›€. 


์žฅ๋น„ ๋ฐ ๊ธฐ์ˆ  ์š”๊ตฌ ์‚ฌํ•ญ ์ •์˜

ํ•„์š”ํ•œ ์žฅ๋น„ ๋ชฉ๋ก์„ ์ž‘์„ฑํ•˜๊ณ , ๊ฐ ์žฅ๋น„์˜ ๋ฐฐ์น˜ ๊ณ„ํš์„ ์ˆ˜๋ฆฝ. 

์ „๋ ฅ, ํ™˜๊ธฐ, ๋ฐฐ๊ด€ ์‹œ์Šคํ…œ ๋“ฑ ๊ธฐ์ˆ ์  ์š”๊ตฌ ์‚ฌํ•ญ์„ ์„ค๊ณ„์— ๋ฐ˜์˜. 


์„ธ๋ถ€ ์„ค๊ณ„ ์ง„ํ–‰

์•ˆ์ „ ์„ค๋น„, ๋ฐฐ๊ธฐ ์‹œ์Šคํ…œ, ์ „๋ ฅ ๊ณต๊ธ‰ ์‹œ์Šคํ…œ ๋“ฑ์„ ํฌํ•จํ•œ ์„ธ๋ถ€ ์„ค๊ณ„๋ฅผ ์ง„ํ–‰. 


์‹œ๊ณต ๋ฐ ์„ค์น˜

์„ค๊ณ„๋œ ๊ณ„ํš์— ๋”ฐ๋ผ ์‹คํ—˜์‹ค์„ ์‹œ๊ณตํ•˜๊ณ , ์žฅ๋น„ ์„ค์น˜ ๋ฐ ์„ค๋น„ ๊ตฌ์ถ•์„ ์ง„ํ–‰. 


์ ๊ฒ€ ๋ฐ ๊ฒ€์ฆ

์‹คํ—˜์‹ค์ด ํšจ์œจ์ ์œผ๋กœ ์ž‘๋™ํ•˜๋Š”์ง€, ์•ˆ์ „ ๊ธฐ์ค€์„ ์ถฉ์กฑํ•˜๋Š”์ง€ ๊ฒ€์ฆํ•˜๊ณ , ํ•„์š”ํ•œ ์ˆ˜์ • ์ž‘์—…์„ ์ง„ํ–‰.

- ์‹คํ—˜์‹ค์„ ์„ค๊ณ„ํ•  ๋•Œ ๊ณ ๋ คํ•ด์•ผ ํ•  ์‚ฌํ•ญ

์‚ฌ์ „ ๊ณ„ํš ์ˆ˜๋ฆฝ 

๊ด‘๋ฒ”์œ„ํ•œ ์‚ฌ์ „ ๊ณ„ํš์€ ์‹คํ—˜์‹ค ์„ค๊ณ„์— ๋งค์šฐ ์ค‘์š”. 

์—ฐ๊ตฌ์‹ค์„ ์—ฐ๊ตฌ์— ํ•„์š”ํ•œ ๊ฒƒ์— ๋งž๊ฒŒ ์กฐ์ •ํ•  ์ˆ˜ ์žˆ๊ณ  ๋ถˆํ•„์š”ํ•œ ์š”์†Œ๋ฅผ ๋น ๋ฅด๊ฒŒ ์‹๋ณ„ํ•  ์ˆ˜ ์žˆ๊ธฐ ๋•Œ๋ฌธ์— ํ•ด๋‹น ์˜์—ญ์„ ์ง์ ‘ ์‚ฌ์šฉํ•  ์‚ฌ๋žŒ๋“ค๊ณผ์˜ ์ž‘์—…์ด ํ•„์ˆ˜. 

์—ฐ๊ตฌ์ž๋“ค๊ณผ์˜ ๋งŽ์€ ๋ฏธํŒ…์„ ํ†ตํ•ด ์„ค๊ณ„์ž๋Š” ๋…ํŠนํ•˜๊ณ  ํ”ํ•˜์ง€ ์•Š์€ ๊ณผํ•™ ์—ฐ๊ตฌ์— ํŠนํžˆ ์œ ์šฉํ•œ ์ •๋ณด๋ฅผ ์–ป์„ ์ˆ˜ ์žˆ์Œ.

๋ ˆ์ด์•„์›ƒ ๋ฐ ์ ‘๊ทผ์„ฑ  

์‹คํ—˜์‹ค ์„ค๊ณ„๋ฅผ ๊ณ„ํšํ•  ๋•Œ ์‹คํ—˜์‹ค์˜ ์œ„์น˜์™€ ๋ ˆ์ด์•„์›ƒ๋„ ๊ณ ๋ ค.

๋‹ค์ธต ๊ฑด๋ฌผ์ธ ๊ฒฝ์šฐ ์˜ฌ๋ฐ”๋ฅธ ์ˆ˜์ง ์šด์†ก์ด ํ•„์š”.

์—ฐ๊ตฌ์ž๋“ค์ด ์œ ํ‹ธ๋ฆฌํ‹ฐ ์‹œ์Šคํ…œ, ํ๊ธฐ๋ฌผ ์ฒ˜๋ฆฌ ๋ฐ ์˜ฌ๋ฐ”๋ฅธ ๊ธฐ๊ธฐ์™€ ๊ฐ™์€ ๊ฒƒ๋“ค์— ํŽธ๋ฆฌํ•˜๊ฒŒ ์ ‘๊ทผ์œ ๋ฌด ํŒŒ์•….

์‹คํ—˜์‹ค ์„ค๊ณ„ ๋ ˆ์ด์•„์›ƒ์— ์˜ํ–ฅ์„ ๋ฏธ์น˜๋Š” ์š”์†Œ์—๋Š” ์œ ์ง€ ๊ด€๋ฆฌ ์šฉ์ด์„ฑ, ์žฅ๋น„ ์ ‘๊ทผ์„ฑ, HVAC ์š”๊ตฌ ์‚ฌํ•ญ ๋ฐ ์ธ์ฒด ๊ณตํ•™๊ณผ ๊ฐ™์€ ์š”์†Œ๊ฐ€ ํฌํ•จ๋จ. 

์ž‘์„ฑ, ๊ด€๋ฆฌ ์ž‘์—… ๋ฐ ์ƒ˜ํ”Œ ์ค€๋น„์— ์‚ฌ์šฉ๋˜๋Š” ๋ฒค์น˜๋Š” ์ ‘๊ทผ์„ฑ๊ณผ ์ž‘์—… ํ๋ฆ„์„ ๊ฐœ์„ ํ•˜๊ธฐ ์œ„ํ•ด ์ฃผ๋ณ€ ๋ฒฝ ์ฃผ์œ„์— ๋ฐฐ์น˜ํ•ด์•ผ ํ•จ.

๊ธฐ๊ธฐ์˜ ์ธ์ฒด๊ณตํ•™์  ์‚ฌ์šฉ์„ ๊ณ ๋ คํ•˜๊ธฐ ์œ„ํ•ด ๋ฒค์น˜์˜ ๋†’์ด์™€ ๊นŠ์ด๋ฅผ ๊ณ ๋ ค.

์‹คํ—˜์‹ค์˜ ์œ ์—ฐ์„ฑ๋„ ๊ณ ๋ ค.

๋ชจ๋“  ๊ฒƒ์ด ์ œ์ž๋ฆฌ์— ์žˆ์œผ๋ฉด ๋ณ€๊ฒฝํ•˜๋Š” ์‹œ๊ฐ„ ์†Œ์š”. 

์ฒ˜์Œ๋ถ€ํ„ฐ ์‹คํ—˜์‹ค์— ์œ ์—ฐ์„ฑ์„ ๊ตฌ์ถ•ํ•˜๋ฉด ์ด๋Ÿฌํ•œ ๋ฌธ์ œ๋ฅผ ์ค„์ผ ์ˆ˜ ์žˆ์Œ. 

์—ฐ๊ตฌ์›์˜ ์ ์‘ 

์—ฐ๊ตฌ ๋ฐฉ๋ฒ•๊ณผ ๊ด€ํ–‰์€ ์‹œ๊ฐ„์ด ์ง€๋‚จ์— ๋”ฐ๋ผ ๋ฐ”๋€. 

์œ ์—ฐ์„ฑ๊ณผ ์ ์‘์„ฑ์€ ์‹คํ—˜์‹ค์ด ์—ฐ๊ตฌ์ž๊ฐ€ ํ˜„์žฌ๋Š” ๋ฐ˜๋“œ์‹œ ํ•„์š”๋กœ ํ•˜์ง€ ์•Š์„ ์ˆ˜๋„ ์žˆ์ง€๋งŒ ๋ฏธ๋ž˜์— ์ง๋ฉดํ•  ์ˆ˜ ์žˆ๋Š” ๋ฌธ์ œ์— ๋Œ€๋น„ํ•  ์ˆ˜ ์žˆ์Œ์„ ์˜๋ฏธํ•จ. 

์ด๋Ÿฌํ•œ ๋ฏธ๋ž˜์˜ ์˜ํ–ฅ์ด ์—†๋”๋ผ๋„ ๋‘ ๋ช… ์ด์ƒ์˜ ์—ฐ๊ตฌ์›์ด ์„œ๋กœ ๋‹ค๋ฅธ ์ž‘์—…์„ ์ˆ˜ํ–‰ํ•˜๊ฑฐ๋‚˜ ํŽธ์•ˆํ•œ ์ž‘์—…์— ๋Œ€ํ•œ ์š”๊ตฌ ์‚ฌํ•ญ์ด ๋‹ค๋ฅผ ์ˆ˜ ์žˆ๊ธฐ ๋•Œ๋ฌธ์— ์œ ์—ฐํ•œ ํ™˜๊ฒฝ์ด ์ค‘์š”. 

์‹คํ—˜์‹ค์ด ์œ ์—ฐ์„ฑ์„ ์œ ์ง€ํ•˜๋ ค๋ฉด ๊ณต๊ฐ„ ๊ตฌ์ถ•์„ ์‰ฝ๊ฒŒ ์žฌ๊ตฌ์„ฑํ•  ์ˆ˜ ์žˆ์–ด์•ผ ํ•จ. 

์™ธ๋ถ€ ์ž‘์—…์ž๋ฅผ ํˆฌ์ž…ํ•  ํ•„์š” ์—†์ด ์ƒˆ๋กœ์šด ํ”„๋กœ์ ํŠธ์˜ ๋ชฉํ‘œ์— ๋งž๊ฒŒ ์žฌ๋ฐฐ์น˜ํ•  ์ˆ˜ ์žˆ๋Š” ์ž‘์—…๋Œ€์™€ ์žฅ๋น„ ์Šคํ…Œ์ด์…˜์ด ํ•„์š”. 

์—ฐ๊ตฌ์ž์˜ ์‹ ์ฒด์  ๋ถ€๋‹ด์„ ์ค„์ด๋Š” ๋ฐฐ์น˜์™€ ์ถฉ๋ถ„ํ•œ ์ž์—ฐ ์ฑ„๊ด‘์€ ๋งค์šฐ ๊ธ์ •์ ์ธ ๋ฐฉ์‹์œผ๋กœ ์—ฐ๊ตฌ์ž์˜ ์„ฑ๊ณผ๋ฅผ ํ–ฅ์ƒ์‹œํ‚ด.

์•ˆ์ „์€ ํ•„์ˆ˜

์ž˜ ์„ค๊ณ„๋œ ์‹คํ—˜์‹ค์€ ์—ฐ๊ตฌ์›๋“ค์ด ์‘๊ธ‰ ์ƒํ™ฉ ๋ฐ ์‚ฌ๊ณ ์— ๋Œ€ํ•ด ๊ณผ๋„ํ•˜๊ฒŒ ๊ฒฝ๊ณ„ํ•˜๋Š” ๋Œ€์‹  ์ž์‹ ์˜ ์ž‘์—…์— ์ง‘์ค‘ํ•  ์ˆ˜ ์žˆ์Œ.

์‹คํ—˜์‹ค์„ ์„ค๊ณ„ํ•  ๋•Œ ์•ˆ์ „ ๊ธฐ๋Šฅ์„ ๊ฐ–์ถ”๋Š” ๊ฒƒ์ด ๋งค์šฐ ์ค‘์š”.

์ƒ๋ฌผ ์•ˆ์ „ ์บ๋น„๋‹›, ํ™”์žฌ ๋ฐฉ์ง€ ๋ฐ ๊ฐ์ง€ ์‹œ์Šคํ…œ, ๋น„์ƒ ์ƒค์›Œ/๋ˆˆ ์„ธ์ฒ™ ์Šคํ…Œ์ด์…˜, ์ž˜ ํ‘œ์‹œ๋œ ์ถœ๊ตฌ๋Š” ์‰ฝ๊ฒŒ ์ ‘๊ทผํ•  ์ˆ˜ ์žˆ์–ด์•ผ ํ•จ.

์˜ฌ๋ฐ”๋ฅธ ์กฐ์น˜๊ฐ€ ์ทจํ•ด์กŒ๋‹ค๋Š” ์‚ฌ์‹ค์„ ์•Œ๊ฒŒ ๋˜๋ฉด ์—ฐ๊ตฌ์›์€ ํ•„์š”ํ•œ ์ž‘์—…์„ ์ตœ์„ ์„ ๋‹คํ•ด ์ˆ˜ํ–‰ํ•  ์ˆ˜ ์žˆ์Œ.

์—ฐ๊ตฌ์ž์˜ ํ™œ๋™์— ๋งž๋Š” ์˜ฌ๋ฐ”๋ฅธ ํ™˜๊ธฐ ์‹œ์Šคํ…œ๋„ ๋งˆ๋ จ๋˜์–ด ์žˆ์–ด์•ผ ํ•จ.์˜จ๋„ ์ œ์–ด๋Š” ์‚ฌ์šฉ์ž๋ฅผ ํŽธ์•ˆํ•˜๊ฒŒ ์œ ์ง€ํ•˜๊ณ  ์ƒ์‚ฐ์„ฑ์„ ๋†’์ผ ์ˆ˜ ์žˆ์Œ.

(โ—”โ€ธโ—” ) ์„ค๊ณ„์‹œ ์ฃผ์˜์‚ฌํ•ญ? 


์‹คํ—˜์‹ค์„ ์„ค๊ณ„ํ•  ๋•Œ ๊ณผ๋„ํ•˜๊ฒŒ ๋ฐฐ์น˜ํ•˜์ง€ ์•Š์•„์•ผ ํ•จ. 

์‹คํ—˜์‹ค ๋ ˆ์ด์•„์›ƒ์€ ์ƒ์‹์ ์ธ ์ง€์นจ์„ ๊ธฐ๋ฐ˜์œผ๋กœ ์„ค๊ณ„. 

์ปดํ“จํ„ฐ๋ฐ ์žฅ๋น„์™€ ๊ฐ™์€ ์ž‘์—… ํ‘œ๋ฉด์—๋Š” ์กฐ์ • ๊ฐ€๋Šฅ, ์ ์ ˆํ•œ ์กฐ๋ช… ๋ฐ ์žฅ๋น„ ๋ ˆ์ด์•„์›ƒ๊ณผ ๊ฐ™์€ ์ธ์ฒด๊ณตํ•™์  ๊ธฐ๋Šฅ์ด ์žˆ์–ด์•ผ ํ•จ. 

๋ฒค์น˜ ๊ณต๊ฐ„์—๋Š” ๊ณ ์ •๋œ ๊ธฐ๊ตฌ ๋ฐ ์žฅ๋น„ ๊ทผ์ฒ˜์— ์˜์ž๋ฅผ ์ˆ˜์šฉํ•  ์ˆ˜ ์žˆ๋Š” ํ•„์š”ํ•œ ๋ฌด๋ฆŽ ๊ณต๊ฐ„์ด ์žˆ์–ด์•ผ ํ•˜๋ฉฐ ์˜ค๋žœ ์—ฐ๊ตฌ์‹œ๊ฐ„์ด ํ•„์š”ํ•œ ๊ณณ์— ํ•„์ˆ˜. 

์—ฐ๊ตฌ์ž ์ƒ์‚ฐ์„ฑ์„ ๊ฐ€์žฅ ์ž˜ ํ–ฅ์ƒ์‹œํ‚ฌ ์ˆ˜ ์žˆ๋„๋ก ์žฅ๋น„์˜ ์œ„์น˜๋ฅผ ๊ณ ๋ ค. 

ํŠน์ • ์žฅ๋น„๋ฅผ ์˜ค๊ฐ€๋Š” ์ด๋™ ์‹œ๊ฐ„์„ ์ตœ์†Œํ™”ํ•˜๊ธฐ ์œ„ํ•ด ํŠน์ • ์ž‘์—…์„ ์„œ๋กœ ์ธ์ ‘ํ•˜๊ฒŒ ๋ฐฐ์น˜. 

์‹คํ—˜์‹ค ๋ ˆ์ด์•„์›ƒ ๋ฐ ์„ค๊ณ„๋Š” ์—ฐ๊ตฌ์˜ ํšจ์œจ์„ฑ, ์•ˆ์ „์„ฑ, ๋ฏธ๋ž˜ ํ™•์žฅ์„ฑ์„ ๊ณ ๋ คํ•œ ์ข…ํ•ฉ์ ์ธ ๊ณ„ํš์ด ํ•„์š”. 

์ž‘์—… ํ๋ฆ„ ๋ถ„์„, ์•ˆ์ „ ์„ค๋น„ ๋ฐฐ์น˜, ์žฅ๋น„ ๋ฐฐ์น˜ ์ตœ์ ํ™”์™€ ๋”๋ถˆ์–ด ๋ฒ•์  ๊ทœ์ œ ์ค€์ˆ˜ ๋ฐ ๊ธฐ์ˆ  ํ†ตํ•ฉ์„ ํ†ตํ•ด ์—ฐ๊ตฌ์›๋“ค์ด ์ตœ์ ์˜ ํ™˜๊ฒฝ์—์„œ ์‹คํ—˜์„ ์ˆ˜ํ–‰ํ•  ์ˆ˜ ์žˆ๋„๋ก ์„ค๊ณ„ํ•ด์•ผ ํ•จ.

๋„ค์ด๋ฒ„ ๋ธ”๋กœ๊ทธ
floating-button-img